For Sale By Auction | 12:00, 22 October 2025 | Lot 32

6 Lees Bank Hill, Cross Roads, Keighley, West Yorkshire BD22 9HA

*Guide | £230,000 (plus fees)

  • Detached House
  • 3 Bedrooms

Call the team on 0113 393 3482 for more information

Auction Date

Wed 22/10/2025

Auction Time

12:00

Auction Venue

Live Stream

This three-bedroom, detached house requires a full refurbishment, so it’s ideal for someone wanting to add value to a property. The house has plenty of potential with benefits including a driveway, garage, front and rear gardens, plus stunning rural views. It’s sold with vacant possession. It’s located within Cross Roads, a village located next to Haworth and 4 miles from Keighley. Amenities such as shops, schools, restaurants and parks can be found in Haworth, which is a 15 minute walk.

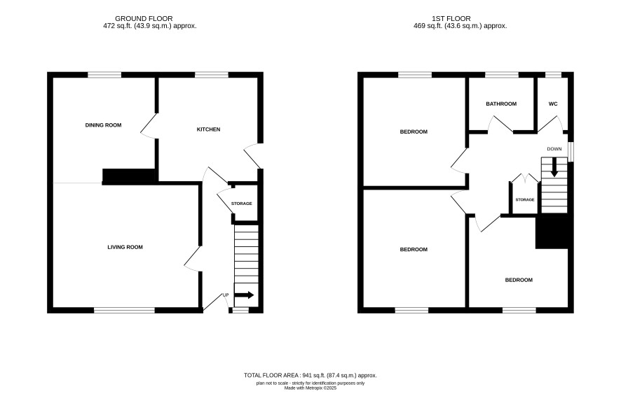
Accommodation

Ground Floor

Kitchen, dining room and living room..

First Floor

Three bedrooms, bathroom and wc.

Externally

Garage, driveway, front and rear garden.

ADDITIONAL INFORMATION

Council Tax

Band A.

EPC

Rating E.

Tenure

Freehold.

Charges & Payments

In addition to the deposit Administration Charge: 1.2% inc VAT of the purchase price subject to a minimum of £1,500 inc VAT. Searches £300 inc VAT

Important Notice to Prospective Buyers:

We draw your attention to the Special Conditions of Sale within the Legal Pack, referring to other charges in addition to the purchase price which may become payable. Such costs may include Search Fees, reimbursement of Sellers costs and Legal Fees, and Transfer Fees amongst others.

Additional Fees

Administration Charge - See above

Disbursements - Please see the legal pack for any disbursements listed that may become payable by the purchaser on completion.