For Sale By Auction | 12:00, 22 October 2025 | Lot 70

143 Church Lane, Gomersal, Cleckheaton, West Yorkshire BD19 4QN

*Guide | £290,000 (plus fees)

  • Detached House
  • 4 Bedrooms

Call the team on 0113 393 3482 for more information

Auction Date

Wed 22/10/2025

Auction Time

12:00

Auction Venue

Live Stream

This four bedroom detached house with off-street parking, garage and gardens is offered for sale via traditional auction. The property does require full renovation throughout, but would make a fantastic project in a highly popular area. There may also be potential to extend the property, subject to the passing of the relevant planning permissions. Gomersal is a popular village location between Cleckheaton and Birstall, with this property sitting almost on the border of Birstall. It enjoys excellent local amenities and is situated in easy reach of the M62 motorway and the large Junction 27 retail park.

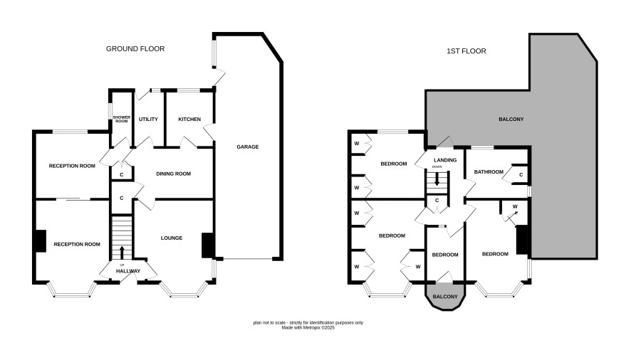
Ground Floor

Lounge, dining room, two reception rooms, shower room, utility room, kitchen and garage.

First Floor

Four bedrooms, bathroom and balcony

Externally

Driveway, front and rear gardens and outbuilding (not inspected).

Additional Information

Council Tax

Kirklees - Band E

EPC Rating

To follow

Tenure

Freehold

Charges and Payments

In addition to the deposit Administration Charge: 1.2% inc VAT of the purchase price subject to a minimum of £1,500 inc VAT. Searches £300 inc VAT

Important Notice to Prospective Buyers:

We draw your attention to the Special Conditions of Sale within the Legal Pack, referring to other charges in addition to the purchase price which may become payable. Such costs may include Search Fees, reimbursement of Sellers costs and Legal Fees, and Transfer Fees amongst others.

Additional Fees

Administration Charge - See above

Disbursements - Please see the legal pack for any disbursements listed that may become payable by the purchaser on completion.