For Sale By Auction | 12:00, 10 December 2025

64 Grove Lane, Leeds, West Yorkshire LS6 2BE

*Guide | £245,000 (plus fees)

  • Detached House
  • 3 Bedrooms

Call the team on 0113 393 3482 for more information

Auction Date

Wed 10/12/2025

Auction Time

12:00

Auction Venue

Live Stream

This three bedroom detached family home is sure to appeal to those looking for a property they can add value to, be it refurbishing the existing property or taking advantage of the large garden and adding an extension (subject to the necessary consents being obtained). The property was last marketed by an estate agent for £399,995 and is now offered with a huge price reduction of £155,000! Situated in this highly convenient location, just a few minutes from parkland, amenities and excellent schools on the doorstep. Brilliant access Meanwood, Headingley and the City Centre of Leeds. Interested parties should note that the property is showing signs of structural movement with a recent survey available to download within the legal pack.

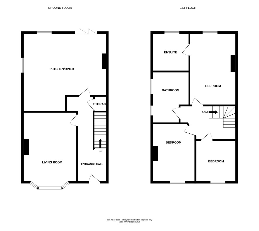
Ground Floor

Living room and dining kitchen

First Floor

Three bedrooms, en-suite and a bathroom

Externally

Gardens to three sides

Additional Information

Council Tax

Leeds City Council - Band D

EPC Rating

E

Tenure

Freehold

Charges and Payments

In addition to the deposit Administration Charge: 1.2% inc VAT of the purchase price subject to a minimum of £1,500 inc VAT.

Important Notice to Prospective Buyers:

We draw your attention to the Special Conditions of Sale within the Legal Pack, referring to other charges in addition to the purchase price which may become payable. Such costs may include Search Fees, reimbursement of Sellers costs and Legal Fees, and Transfer Fees amongst others.

Additional Fees

Administration Charge - See above

Disbursements - Please see the legal pack for any disbursements listed that may become payable by the purchaser on completion.

View Larger Map

Disclaimer: The map preview provided above is for general guidance only and may not accurately reflect the exact location or surrounding buildings. Prospective buyers and interested parties are strongly advised to independently verify the precise location and surroundings before bidding.