For Sale By Auction | 12:00, 10 December 2025

22 Mayville Terrace, Leeds, West Yorkshire LS6 1NB

*Guide | £150,000 (plus fees)

  • Terraced House
  • 4 Bedrooms

Call the team on 0113 393 3482 for more information

Auction Date

Wed 10/12/2025

Auction Time

12:00

Auction Venue

Live Stream

This four bedroom through terrace property with rear yard is offered for sale via traditional auction. The property does require full renovation throughout, however would make a great project or addition to a rental portfolio. The property is located in the heart of Hyde Park, an area popular with students and investors alike with a plethora of shops and amenities on the doorstop. Please note the property is sold as seen, however some of the contents may be useful to a buyer, such as a Howdens kitchen and insulation board.

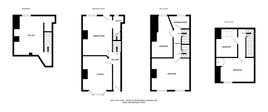
Lower Ground Floor

Cellar.

Ground Floor

Lounge, kitchen and utility.

First Floor

Two bedrooms and shower room.

Second Floor

Two bedrooms.

Externally

Rear yard.

Additional Information

Council Tax

Band B.

EPC

Rating C.

Tenure

Freehold.

Charges & Payments

In addition to the deposit Administration Charge: 1.2% inc VAT of the purchase price subject to a minimum of £1,500 inc VAT. Searches £300 inc VAT

Important Notice to Prospective Buyers:

We draw your attention to the Special Conditions of Sale within the Legal Pack, referring to other charges in addition to the purchase price which may become payable. Such costs may include Search Fees, reimbursement of Sellers costs and Legal Fees, and Transfer Fees amongst others.

Additional Fees

Administration Charge - See above

Disbursements - Please see the legal pack for any disbursements listed that may become payable by the purchaser on completion.

View Larger Map

Disclaimer: The map preview provided above is for general guidance only and may not accurately reflect the exact location or surrounding buildings. Prospective buyers and interested parties are strongly advised to independently verify the precise location and surroundings before bidding.