Sold Prior | Lot 23

The Hope & Anchor , 245 South Street, Keighley, West Yorkshire BD21 1AG

Sold Prior

  • Pub

Call the team on 0113 393 3482 for more information

Auction Date

Wed 10/12/2025

Auction Time

12:00

Auction Venue

Live Stream

Sold prior to marketing, sorry!

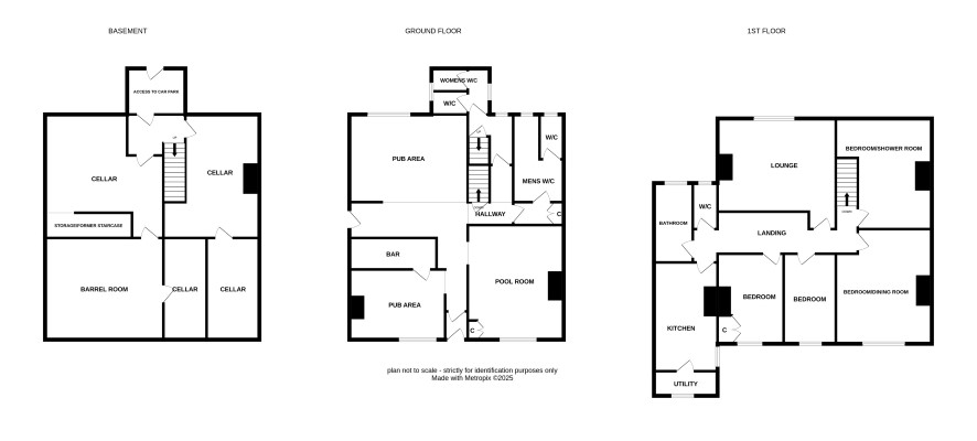
Lower Ground Floor

Spacious pub cellar

Ground Floor

Pub space, bar, pool room, male toilets and female toilets

First Floor

Lounge, kitchen, utlity, bathroom, w/c, dining room and three bedrooms

Externally

Car park to the rear

ADDITIONAL INFORMATION

Local Authority

City of Bradford Metropolitan District Council.

EPC Rating

D

Tenure

Freehold

Charges & Payments

In addition to the deposit: Administration Charge: 1.2% inc VAT of the purchase price subject to a minimum of £1,500 inc VAT.

Important Notice to Prospective Buyers:

We draw your attention to the Special Conditions of Sale within the Legal Pack, referring to other charges in addition to the purchase price which may become payable. Such costs may include Search Fees, reimbursement of Sellers costs and Legal Fees, and Transfer Fees amongst others.

Additional Fees

Administration Charge - See above

Disbursements - Please see the legal pack for any disbursements listed that may become payable by the purchaser on completion.

View Larger Map

Disclaimer: The map preview provided above is for general guidance only and may not accurately reflect the exact location or surrounding buildings. Prospective buyers and interested parties are strongly advised to independently verify the precise location and surroundings before bidding.