For Sale By Auction | 12:00, 10 December 2025 | Lot 53a

48 Nowell Place, Leeds, West Yorkshire LS9 6HT

Sold

  • Terraced House
  • 4 Bedrooms

Call the team on 0113 393 3482 for more information

Auction Date

Wed 10/12/2025

Auction Time

12:00

Auction Venue

Live Stream

This four bedroom through terrace with rear yard is offered for sale via traditional auction. The property does require full renovation throughout, but would make a great project or addition to a rental portfolio. Located in the area of Harehills, close to local amenities and shops, Leeds city centre and within walking distance of St. James's Hospital.

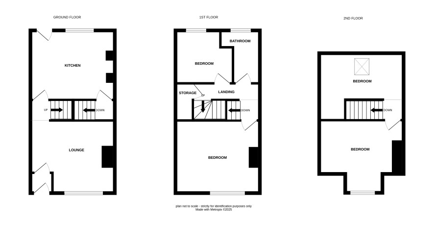
Lower Ground Floor

Cellar

Ground Floor

Lounge and kitchen

First Floor

Two bedrooms and a bathroom

Second Floor

Two bedrooms

Externally

Rear yard

Additional Information

Council Tax

Leeds City Council

EPC Rating

D

Tenure

Freehold

Charges and Payments

In addition to the deposit Administration Charge: 1.2% inc VAT of the purchase price subject to a minimum of £1,500 inc VAT. Searches £300 inc VAT

Important Notice to Prospective Buyers:

We draw your attention to the Special Conditions of Sale within the Legal Pack, referring to other charges in addition to the purchase price which may become payable. Such costs may include Search Fees, reimbursement of Sellers costs and Legal Fees, and Transfer Fees amongst others.

Additional Fees

Administration Charge - See above

Disbursements - Please see the legal pack for any disbursements listed that may become payable by the purchaser on completion.

View Larger Map

Disclaimer: The map preview provided above is for general guidance only and may not accurately reflect the exact location or surrounding buildings. Prospective buyers and interested parties are strongly advised to independently verify the precise location and surroundings before bidding.