For Sale By Auction | 12:00, 04 February 2026 | Lot 3

54 Summerbridge Crescent, Bradford, West Yorkshire BD10 8BB

*Guide | £70,000 (plus fees)

  • End of Terrace House
  • 3 Bedrooms

Call the team on 0113 393 3482 for more information

Auction Date

Wed 04/02/2026

Auction Time

12:00

Auction Venue

Live Stream

This three bedroom end terrace property with front and rear gardens and parking space is offered for sale via traditional auction. The property does require full renovation throughout, but would make a great project or addition to a rental portfolio. Situated in an excellent residential location, it is well positioned for a host of amenities, schools and transport connections.

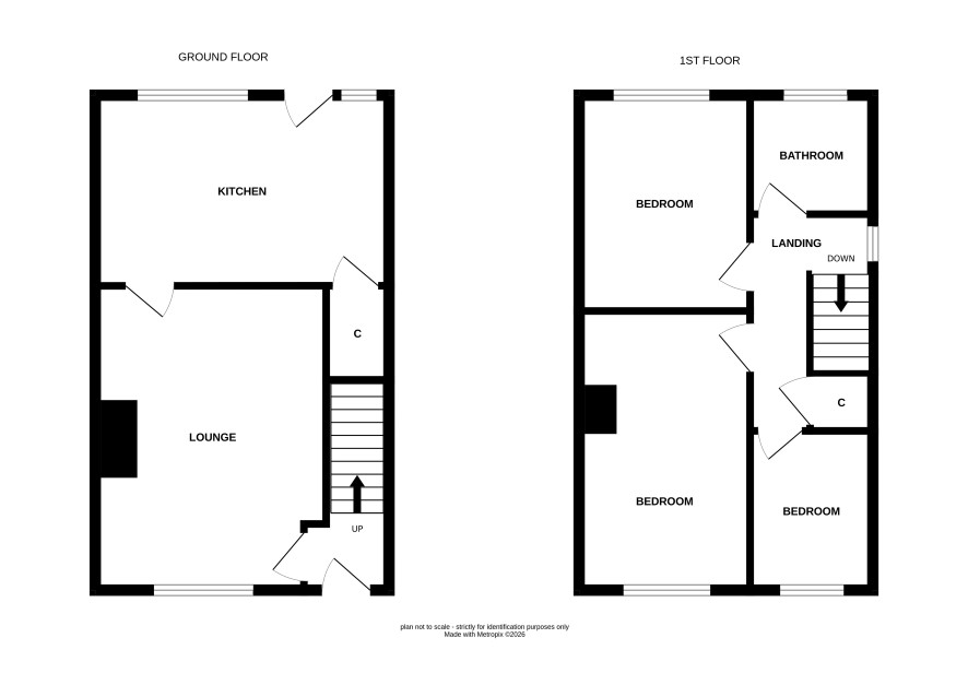
Ground Floor

Lounge and kitchen.

First Floor

Three bedrooms and bathroom.

Externally

Front and rear gardens.

ADDITIONAL INFORMATION

Local Authority

City of Bradford Metropolitan Council.

EPC

Rating E.

Tenure

Freehold.

Charges & Payments

In addition to the deposit Administration Charge: 1.2% inc VAT of the purchase price subject to a minimum of £1,500 inc VAT. Searches £300 inc VAT

Disbursements

Any additional disbursements payable by the purchaser are yet to be confirmed by the vendor’s solicitor. For more details, please see the legal pack.

Guide Price

Guides are provided as an indication of each seller's minimum expectation. They are not necessarily figures which a property will sell for and may change at any time prior to the auction. Each property will be offered subject to a Reserve (a figure below which the Auctioneer cannot sell the property during the auction) which we expect will be set within the Guide Range or no more than 10% above a single figure Guide.

Important Notice to Prospective Buyers:

We draw your attention to the Special Conditions of Sale within the Legal Pack, referring to other charges in addition to the purchase price which may become payable. Such costs may include Search Fees, reimbursement of Sellers costs and Legal Fees, and Transfer Fees amongst others.

Additional Fees

Administration Charge - See above

Disbursements - Please see the legal pack for any disbursements listed that may become payable by the purchaser on completion.

View Larger Map

Disclaimer: The map preview provided above is for general guidance only and may not accurately reflect the exact location or surrounding buildings. Prospective buyers and interested parties are strongly advised to independently verify the precise location and surroundings before bidding.