For Sale By Auction | 12:00, 04 February 2026 | Lot 20

179 Throstle Road, Leeds, West Yorkshire LS10 4HF

Sold

  • Semi-Detached House
  • 2 Bedrooms

Call the team on 0113 393 3482 for more information

Auction Date

Wed 04/02/2026

Auction Time

12:00

Auction Venue

Live Stream

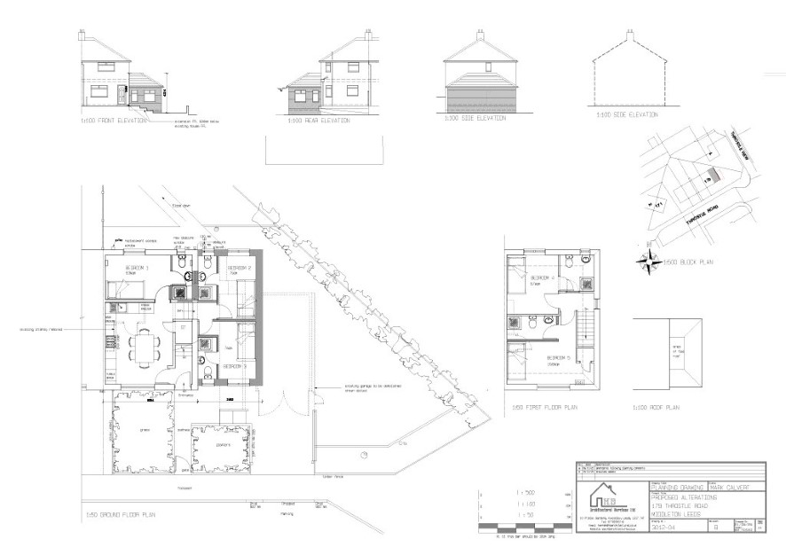
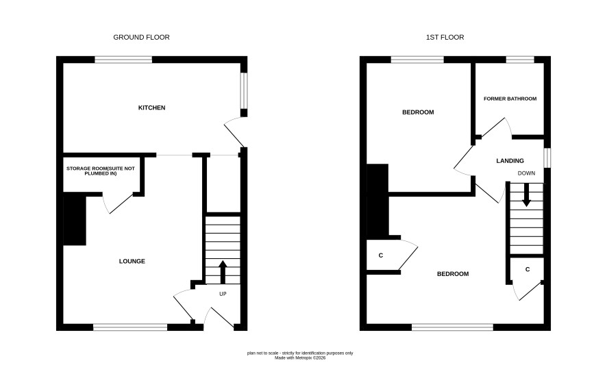
This two bedroom end terrace with garage and gardens is offered for sale via traditional auction. The property does require renovation throughout, but would make a great project or addition to a rental portfolio. The property also has approved planning for a single story side extension which could allow the property to be utilised as an HMO subject to obtaining the relevant approvals/licenses. For further information please visit the Leeds City Council planning portal using reference 25/04498/FU. In addition to the above, the vendor has plans (included in the photos) for conversion to a 5 bedroom all en-suite HMO, which if fully let at £675 pcm, could produce a gross income of £40,500 per year. Alternatively, the extension could provide accommodation for a nice sized 4 bedroom property. Situated within close proximity to motorway links such as the M62 and M1 this makes an attractive purchase for the commuter. Good local primary and secondary schools are also close by making this home ideal for the growing family. Please note the shower suite in the storage room is not plumbed in.

Ground Floor

Lounge, kitchen and shower room

First Floor

Three bedrooms

Externally

Gardens and garage

Additional Information

Council Tax

Leeds City Council - Band A

EPC Rating

E

Tenure

Freehold

Charges and Payments

In addition to the deposit Administration Charge: 1.2% inc VAT of the purchase price subject to a minimum of £1,500 inc VAT. Searches £300 inc VAT

Important Notice to Prospective Buyers:

We draw your attention to the Special Conditions of Sale within the Legal Pack, referring to other charges in addition to the purchase price which may become payable. Such costs may include Search Fees, reimbursement of Sellers costs and Legal Fees, and Transfer Fees amongst others.

Additional Fees

Administration Charge - See above

Disbursements - Please see the legal pack for any disbursements listed that may become payable by the purchaser on completion.

View Larger Map

Disclaimer: The map preview provided above is for general guidance only and may not accurately reflect the exact location or surrounding buildings. Prospective buyers and interested parties are strongly advised to independently verify the precise location and surroundings before bidding.