For Sale By Auction | 12:00, 04 February 2026 | Lot 29

34 Martin Terrace, Leeds, West Yorkshire LS4 2JY

*Guide | £100,000 (plus fees)

  • Terraced House
  • 3 Bedrooms

Call the team on 0113 393 3482 for more information

Auction Date

Wed 04/02/2026

Auction Time

12:00

Auction Venue

Live Stream

This three bedroom back-to-back terraced house presents an ideal opportunity for buyers looking for a project. Conveniently situated just a few minutes’ walk to Burley Park train station, Vue cinema complex & within easy reach of the extensive amenities of Leeds city centre, universities & hospitals. Suitable for both for private occupation or investment, the characterful accommodation comprises a basement, lounge and kitchen to the ground floor, a double bedroom and house bathroom to the first floor and two further bedrooms to the second floor. Additional features include gas central heating, upvc double glazing and original period features.

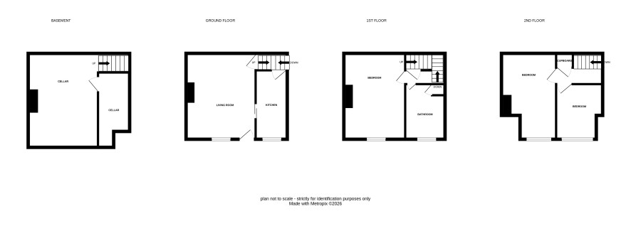
Lower Ground Floor

Two cellar rooms

Ground Floor

Living room and kitchen

First Floor

Bedroom and bathroom

Second Floor

Two bedrooms

Additional Information

Council Tax

Leeds City Council - Band A

EPC Rating

E

Tenure

Freehold

Charges and Payments

In addition to the deposit Administration Charge: 1.2% inc VAT of the purchase price subject to a minimum of £1,500 inc VAT. Searches £300 inc VAT.

Important Notice to Prospective Buyers:

We draw your attention to the Special Conditions of Sale within the Legal Pack, referring to other charges in addition to the purchase price which may become payable. Such costs may include Search Fees, reimbursement of Sellers costs and Legal Fees, and Transfer Fees amongst others.

Additional Fees

Administration Charge - See above

Disbursements - Please see the legal pack for any disbursements listed that may become payable by the purchaser on completion.

View Larger Map

Disclaimer: The map preview provided above is for general guidance only and may not accurately reflect the exact location or surrounding buildings. Prospective buyers and interested parties are strongly advised to independently verify the precise location and surroundings before bidding.