Withdrawn | Lot 22

10 Manor House Croft, Leeds, West Yorkshire LS16 8LY

Withdrawn

  • Flat
  • 1 Bedroom

Call the team on 0113 393 3482 for more information

Auction Date

Wed 25/03/2026

Auction Time

12:00

Auction Venue

Live Stream

This one bedroom first floor apartment with parking is offered for sale via traditional auction. The property is currently tenanted generating a gross rental income of £8,400 per annum making this a great addition to a rental portfolio. Located close to a wide range of local amenities, shops, and excellent transport links into Leeds city centre and beyond, the flat offers both convenience and comfort in one of North Leeds most popular residential areas. Leasehold information: Lease length - 998 years from 29th July 1983 Ground Rent - £25 Per Annum Service Charge - £858 Per Annum. Please note: A 14 day completion applies to this lot.

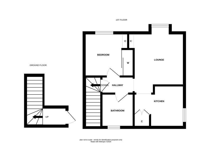
Ground Floor

Private entrance.

First Floor

Lounge, kitchen, bedroom and bathroom.

Externally

Parking.

ADDITIONAL INFORMATION

Council Tax

Band A.

EPC

Rating C.

Tenure

Leasehold.

Disclaimer

Any information in relation to the length of lease, service charge, ground rent and council tax has been confirmed by our sellers. We advise buyers to make their own enquiries through their solicitors to verify that the information provided is accurate and not been subject to any change.

Charges & Payments

In addition to the deposit Administration Charge: 1.5% inc VAT of the purchase price subject to a minimum of £2,100 inc VAT. Buyer’s Premium: £1,200 inc VAT.

Important Notice to Prospective Buyers:

We draw your attention to the Special Conditions of Sale within the Legal Pack, referring to other charges in addition to the purchase price which may become payable. Such costs may include Search Fees, reimbursement of Sellers costs and Legal Fees, and Transfer Fees amongst others.

Additional Fees

Administration Charge - See above

Disbursements - Please see the legal pack for any disbursements listed that may become payable by the purchaser on completion.

View Larger Map

Disclaimer: The map preview provided above is for general guidance only and may not accurately reflect the exact location or surrounding buildings. Prospective buyers and interested parties are strongly advised to independently verify the precise location and surroundings before bidding.