For Sale By Auction | 12:00, 25 March 2026

21 Beech Street, Mirfield, West Yorkshire WF14 9AE

*Guide | £120,000 (plus fees)

  • Terraced House
  • 3 Bedrooms

Call the team on 0113 393 3482 for more information

Auction Date

Wed 25/03/2026

Auction Time

12:00

Auction Venue

Live Stream

This three bedroom, mid terraced house is sold with vacant possession, so is ideal for an owner occupier or an investor looking to add to their portfolio. The property benefits from an enclosed yard to the rear and on street parking to the front. Internally, the property is in overall good condition, however could benefit from some minor cosmetic upgrades after being tenanted in recent years. It is located within Mirfield, a town positioned in between Brighouse and Dewsbury and benefits from being within walking distance to the high street with local shops, schools and amenities. It also has excellent access to the M62 for commuters.

Lower Ground Floor

Basement

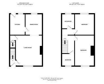
Ground Floor

Living room, kitchen and kitchen

First Floor

Three bedrooms and a bathroom

Externally

Rear yard

Additional Information

Council Tax

Kirklees - Band B

EPC Rating

D

Tenure

Freehold

Charges and Payments

In addition to the deposit Administration Charge: 1.5% inc VAT of the purchase price subject to a minimum of £2,100 inc VAT. Searches £360 inc VAT.

Important Notice to Prospective Buyers:

We draw your attention to the Special Conditions of Sale within the Legal Pack, referring to other charges in addition to the purchase price which may become payable. Such costs may include Search Fees, reimbursement of Sellers costs and Legal Fees, and Transfer Fees amongst others.

Additional Fees

Administration Charge - See above

Disbursements - Please see the legal pack for any disbursements listed that may become payable by the purchaser on completion.

View Larger Map

Disclaimer: The map preview provided above is for general guidance only and may not accurately reflect the exact location or surrounding buildings. Prospective buyers and interested parties are strongly advised to independently verify the precise location and surroundings before bidding.