For Sale By Auction | 11:00, 11 December 2024 | Lot 123

114 Raglan Street, Lowestoft, Suffolk NR32 2JT

Sold £90,500

  • Terraced House
  • 3 Bedrooms
  • Tenure: Freehold

Call the team on 01603 505 100 for more information

Auction Date

Wed 11/12/2024

Auction Time

11:00

Auction Venue

Livestream Auction

Residential investment comprising a three bedroom terrace house let producing £8,700 pa

This three bedroom mid terraced property is in good decorative order and has a modern kitchen. It is currently let at £725 pcm to an established tenant who has been in occupation since 17th May 2021. The property benefits from gas central heating and has double glazed windows. The property is located close to the town centre near to a comprehensive range of amenities. It would make an ideal purchase for an investor looking for an attractive yield.

Tenure

Freehold

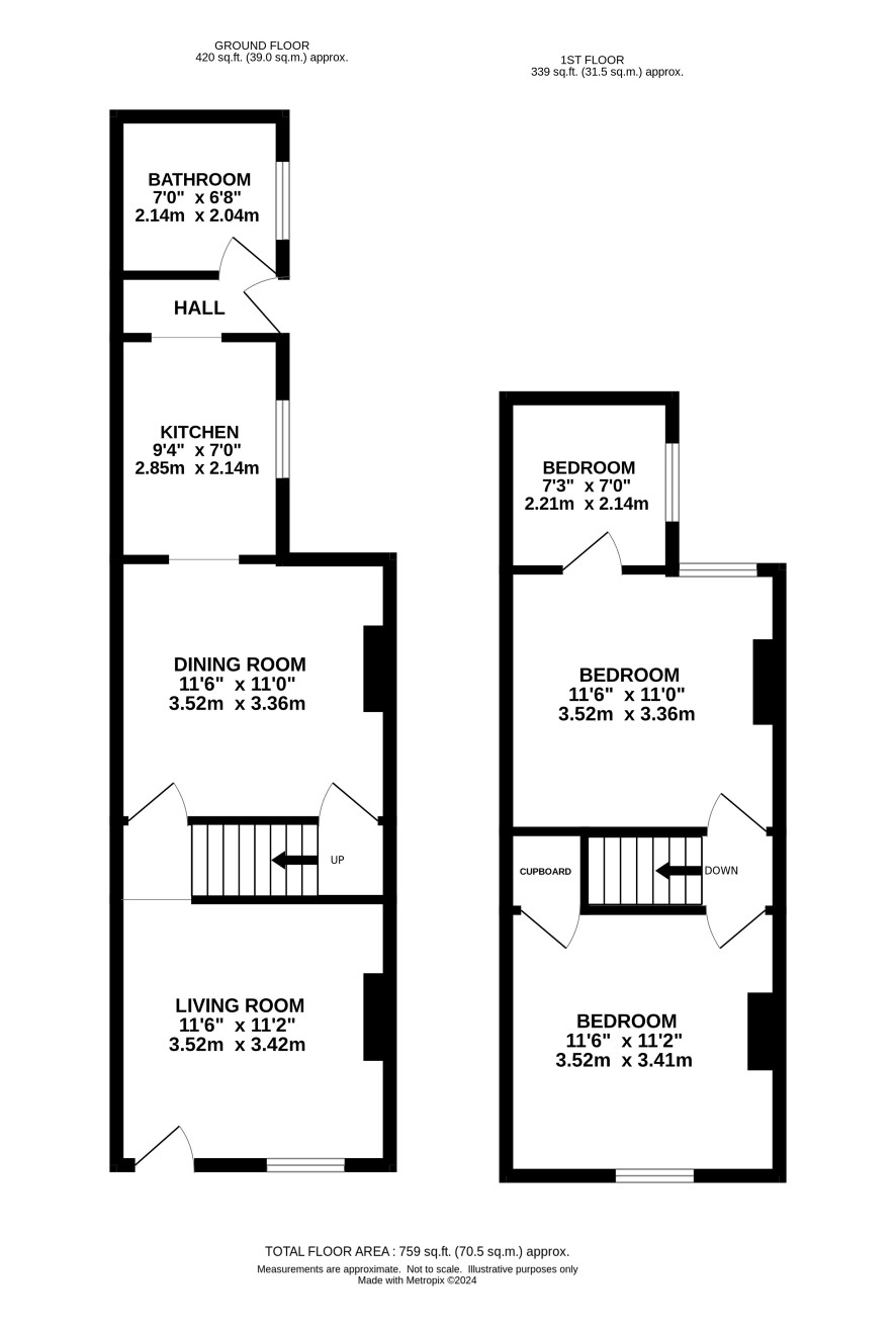
Ground floor

Sitting Room, dining room, kitchen, rear hall, bathroom

First Floor

Landing, Three bedrooms (bedroom three leads off bedroom two)

Exterior

To the rear of the property there is an enclosed courtyard garden with rear access from the property.

Council Tax Band

A

Viewings

Viewings are being arranged and the next one is Friday 29th November. Please contact the Norwich Office to book an appointment

Energy Efficiency Rating (EPC)

Current Rating D

Services

Interested parties are requested to make their own enquiries to the relevant authorities as to the availability of services.

Local Authority

East Suffolk Council

Solicitors

22 Law, Ref: Claire Stanton, Tel: 0191 432 4408

Important Notice to Prospective Buyers:

We draw your attention to the Special Conditions of Sale within the Legal Pack, referring to other charges in addition to the purchase price which may become payable. Such costs may include Search Fees, reimbursement of Sellers costs and Legal Fees, and Transfer Fees amongst others.

Additional Fees

Buyer's Premium - £600 inc VAT payable on exchange of contracts.

Administration Charge - 0.3% inc VAT of the purchase price, subject to a minimum of £1200 inc VAT, payable on exchange of contracts.

Disbursements - Please see the legal pack for any disbursements listed that may become payable by the purchaser on completion.

View Larger Map

Disclaimer: The map preview provided above is for general guidance only and may not accurately reflect the exact location or surrounding buildings. Prospective buyers and interested parties are strongly advised to independently verify the precise location and surroundings before bidding.