Withdrawn | Lot 125

5 Church Road, Kessingland, Lowestoft, Suffolk NR33 7TH

Withdrawn

  • Terraced House
  • 3 Bedrooms
  • Tenure: Freehold

Call the team on 01603 505 100 for more information

Auction Date

Wed 11/12/2024

Auction Time

11:00

Auction Venue

Livestream Auction

Charming three bedroom bay fronted terrace house with off road parking

This three bedroom terrace house with off road parking has been in the same ownership for many years and is now to be sold with vacant possession. The property benefits from period features including open fire place, exposed brickwork, bay window, original flooring and now requires a programme of updating to realise its full potential. It is conveniently located around eight miles north of Southwold close to a range of services and amenities. An ideal purchase for the owner-occupier or investor.

Tenure

Freehold

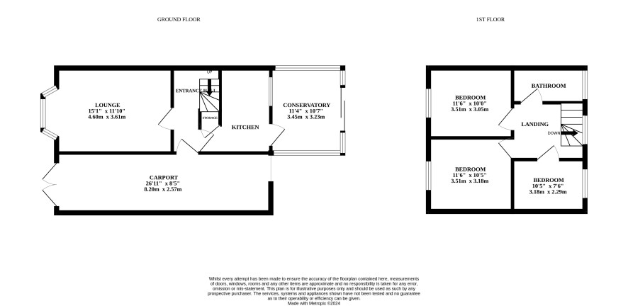
Ground floor

Entrance hall, lounge, kitchen, conservatory

First floor

Landing, three bedrooms, bathroom

Outside

Off road parking, car port, mature garden

Council Tax

B

Energy Efficiency Rating (EPC)

Current Rating F

Services

Interested parties are requested to make their own enquiries to the relevant authorities as to the availability of services.

Local Authority

East Suffolk Council

Solicitors

CDS Mayfair, 32 Old Burlington Street, Ref: Simon Saunders, Tel: 0207 758 8170

Important Notice to Prospective Buyers:

We draw your attention to the Special Conditions of Sale within the Legal Pack, referring to other charges in addition to the purchase price which may become payable. Such costs may include Search Fees, reimbursement of Sellers costs and Legal Fees, and Transfer Fees amongst others.

Additional Fees

Buyer's Premium - £900 inc VAT payable on exchange of contracts.

Administration Charge - 0.3% inc VAT of the purchase price, subject to a minimum of £1200 inc VAT, payable on exchange of contracts.

Disbursements - Please see the legal pack for any disbursements listed that may become payable by the purchaser on completion.

View Larger Map

Disclaimer: The map preview provided above is for general guidance only and may not accurately reflect the exact location or surrounding buildings. Prospective buyers and interested parties are strongly advised to independently verify the precise location and surroundings before bidding.