For Sale By Auction | 11:00, 11 December 2024 | Lot 11

7 Norman Road, Norwich, Norfolk NR3 3NQ

Sold After

  • Terraced House
  • 3 Bedrooms
  • Tenure: Freehold

Call the team on 01603 505 100 for more information

Auction Date

Wed 11/12/2024

Auction Time

11:00

Auction Venue

Livestream Auction

A three bedroom terrace house in need of refurbishment, ideal for developer or investor

This three bedroom terrace house is now vacant and in need of updating and remedial repair to realise its full potential. It benefits from gas fired central heating and is double glazed throughout. The property is situated within the popular NR3 postcode, close to shops, pubs, schools, and is within walking distance to Norwich City Centre. Please note that this property is suitable for cash buyers only.

Tenure

Freehold

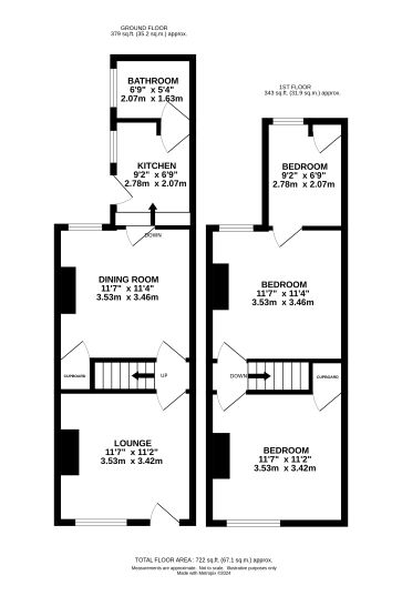
Ground Floor

Lounge, dining room, kitchen, bathroom

First Floor

Two bedrooms and one box style bedroom

Outside

Small front garden, rear bisected garden

Council Tax Band

B

Viewings

Viewings are being held by appointment and the next opportunity to view is on Tuesday 3rd and Friday 6th December Please contact the Norwich Office to book your appointment.

Energy Efficiency Rating (EPC)

Current Rating D

Services

Interested parties are requested to make their own enquiries to the relevant authorities as to the availability of services.

Local Authority

Norwich City Council

Solicitors

Rollits Solicitors (Hull), Ref: Sam East, Tel: 01482 337272

Important Notice to Prospective Buyers:

We draw your attention to the Special Conditions of Sale within the Legal Pack, referring to other charges in addition to the purchase price which may become payable. Such costs may include Search Fees, reimbursement of Sellers costs and Legal Fees, and Transfer Fees amongst others.

Additional Fees

Buyer's Premium - £1200 inc VAT payable on exchange of contracts.

Administration Charge - 0.3% inc VAT of the purchase price, subject to a minimum of £1200 inc VAT, payable on exchange of contracts.

Disbursements - Please see the legal pack for any disbursements listed that may become payable by the purchaser on completion.

View Larger Map

Disclaimer: The map preview provided above is for general guidance only and may not accurately reflect the exact location or surrounding buildings. Prospective buyers and interested parties are strongly advised to independently verify the precise location and surroundings before bidding.