Sold Prior | Lot 10

The Manor House, Church Street, Old Catton, Norwich, Norfolk NR6 7DR

Sold Prior

  • Semi-Detached House
  • 7 Bedrooms
  • Tenure: Freehold

Call the team on 01603 505 100 for more information

Auction Date

Wed 11/12/2024

Auction Time

11:00

Auction Venue

Livestream Auction

This picturesque Grade II listed semi-detached house, set in grounds of 0.27 acre with an enclosed walled garden of knapped flint and brick, a gateway in south wall of conservatory with moulded stone surround and oak frame with carved spandrels.

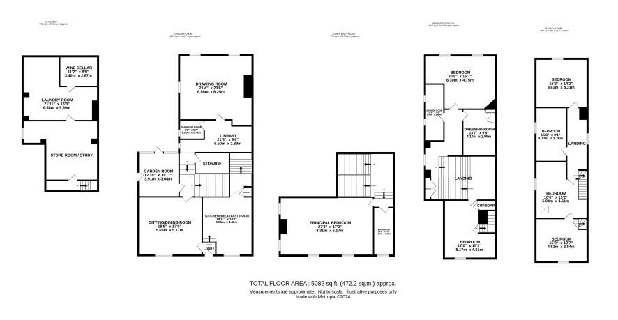
The Manor House exudes character and history with its high ceilings, grand oak staircase, stripped wooden floors and fireplaces to name but a few. The property dates back to the 16th century with later additions and sits in a plot extending 0.27 acre. This versatile accommodation is arranged over five floors to include a large cellar separated into three areas and four attic rooms on the top floor. On the ground floor you have steps down into the kitchen breakfast room where you can also access the cellarage. Also on the first floor you have the drawing room, library area, sitting/formal dining room, shower room and garden room. On the first floors: Three bedrooms, dressing room and two bathrooms. The property is approached over a shared gravel driveway with parking to the corner for up to two tandem cars (please refer to the legal pack).

Tenure

Freehold

Cellar

Stairs from kitchen into three rooms to include a store room, laundry area and wine cellar.

Ground Floor

Entrance Lobby with stairs down into the kitchen/breakfast room. Sitting/formal dining room, garden room, drawing room, shower room and garden room.

Lower and Upper First Floor

Lower first floor:- principal bedroom and bathroom. Upper first floor:- Two bedrooms, dressing room and large bathroom.

Second floor

Four attic rooms

Outside

The property is approached over a shared gravel driveway with parking to the corner for up two tandem cars (please refer to the legal pack). The grounds extend to 0.27 acre and the rear garden is fully enclosed by knapped flint and brick walling with a large area of lawn to the rear with gateway to side.

Council Tax

G

Agents Note

Please note that there will be an 40 day completion time for this property.

Services

Interested parties are requested to make their own enquiries to the relevant authorities as to the availability of services.

Local Authority

Broadland District Council

Solicitors

Fosters, Ref: Rebecca Laws, Tel: 01603 723769

Important Notice to Prospective Buyers:

We draw your attention to the Special Conditions of Sale within the Legal Pack, referring to other charges in addition to the purchase price which may become payable. Such costs may include Search Fees, reimbursement of Sellers costs and Legal Fees, and Transfer Fees amongst others.

Additional Fees

Buyer's Premium - £600 inc VAT payable on exchange of contracts.

Administration Charge - 0.3% inc VAT of the purchase price, subject to a minimum of £1200 inc VAT, payable on exchange of contracts.

Disbursements - Please see the legal pack for any disbursements listed that may become payable by the purchaser on completion.

View Larger Map

Disclaimer: The map preview provided above is for general guidance only and may not accurately reflect the exact location or surrounding buildings. Prospective buyers and interested parties are strongly advised to independently verify the precise location and surroundings before bidding.