For Sale By Auction | 11:00, 11 December 2024 | Lot 9

46 The Paddocks, Old Catton, Norwich, Norfolk NR6 7HD

Sold £231,500

  • Chalet
  • Tenure: Freehold

Call the team on 01603 505 100 for more information

Auction Date

Wed 11/12/2024

Auction Time

11:00

Auction Venue

Livestream Auction

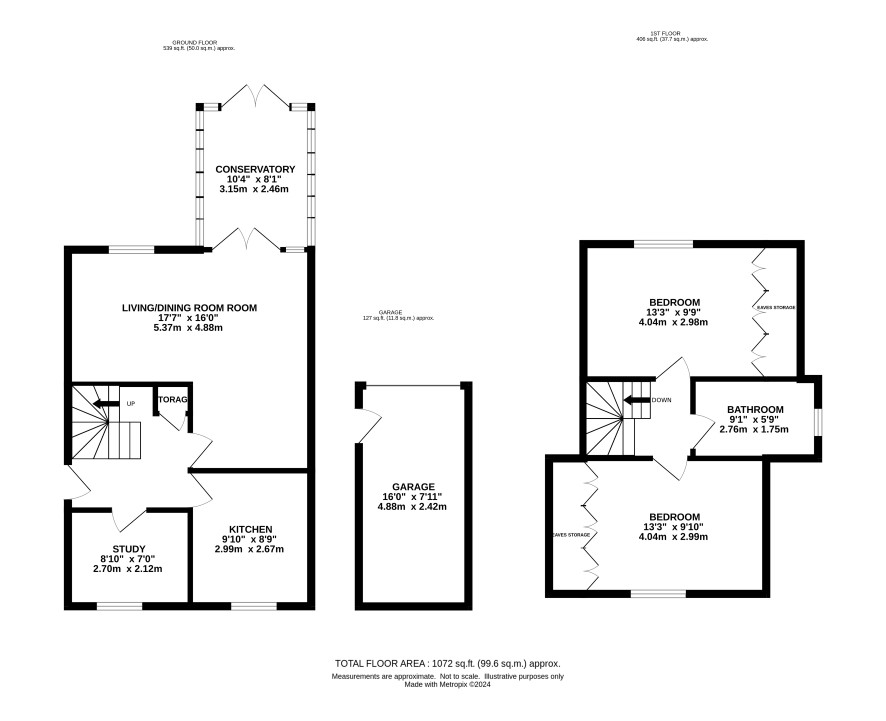
Three Bedroom detached Chalet situated in a cul de sac location on a corner plot with garage and off road parking and requiring updating and improvement.

This two/three bedroom chalet bungalow is situated on a corner plot in a cul-de-sac location and benefits from a good size rear garden, garage and off road parking. The property offers flexible accommodation with two double bedrooms on the first floor and a third bedroom/study and "L" shaped sitting room/diner, conservatory and separate kitchen on the ground floor. The property benefits from gas central heating and now requires a programme of modernisation to realise its full potential. The property is located around three miles north of the city centre and within close proximity to a Morrisons and local amenities with easy access to Norwich Airport and the Broadland Northway.

Tenure

Freehold

Energy Efficiency Rating (EPC)

Current Rating D

Services

Interested parties are requested to make their own enquiries to the relevant authorities as to the availability of services.

Local Authority

Broadland District Council

Important Notice to Prospective Buyers:

We draw your attention to the Special Conditions of Sale within the Legal Pack, referring to other charges in addition to the purchase price which may become payable. Such costs may include Search Fees, reimbursement of Sellers costs and Legal Fees, and Transfer Fees amongst others.

Additional Fees

Buyer's Premium - £600 inc VAT payable on exchange of contracts.

Administration Charge - 0.3% inc VAT of the purchase price, subject to a minimum of £1200 inc VAT, payable on exchange of contracts.

Disbursements - Please see the legal pack for any disbursements listed that may become payable by the purchaser on completion.

View Larger Map

Disclaimer: The map preview provided above is for general guidance only and may not accurately reflect the exact location or surrounding buildings. Prospective buyers and interested parties are strongly advised to independently verify the precise location and surroundings before bidding.