For Sale By Auction | 10:00, 18 June 2025 | Lot 91

Ballendella, Connaught Plain, Attleborough, Norfolk NR17 2EJ

Sold £130,000

  • Shop
  • Tenure: Freehold

Call the team on 01603 505 100 for more information

Auction Date

Wed 18/06/2025

Auction Time

10:00

Auction Venue

Livestream Auction

Vacant three storey end terrace town centre property with off road parking

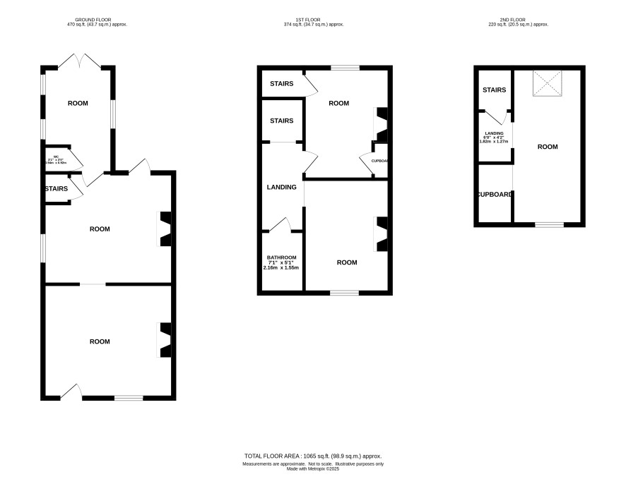
This three storey end terrace commercial building extends to around 104 sq/m and is located in the town centre near Sainsburys. Originally residential it has been used as a shop for a number of years and most recently traded as a second hand shop called Odds and Sods. It has the potential to be converted back into a house or flats, subject to the necessary consents being obtained. It has a range of period features, including wooden floors and exposed fire places. It is mostly double glazed, has gas fired central heating and benefits from a long rear garden with off road parking via The Drift.

Tenure

Freehold

Ground floor

Kitchen, wc, two rooms

First floor

Bathroom, two rooms

Second floor

Room

Outside

Rear garden and off road parking

Business Rates

The current rateable value according to the government website is £2,850

Viewings

Viewings are being held by appointment - the next are on Thursday 5 June. To book the next available slot please call the Norwich office.

Energy Efficiency Rating (EPC)

Current Rating E

Services

Interested parties are requested to make their own enquiries to the relevant authorities as to the availability of services.

Local Authority

Breckland Council

Solicitors

Spire Solicitors LLP (Norwich), Ref: Tracy Guest, Tel: 01603 886221

Important Notice to Prospective Buyers:

We draw your attention to the Special Conditions of Sale within the Legal Pack, referring to other charges in addition to the purchase price which may become payable. Such costs may include Search Fees, reimbursement of Sellers costs and Legal Fees, and Transfer Fees amongst others.

Additional Fees

Administration Charge - £1200 inc VAT payable on exchange of contracts.

Disbursements - Please see the legal pack for any disbursements listed that may become payable by the purchaser on completion.

View Larger Map

Disclaimer: The map preview provided above is for general guidance only and may not accurately reflect the exact location or surrounding buildings. Prospective buyers and interested parties are strongly advised to independently verify the precise location and surroundings before bidding.