For Sale By Auction | 10:00, 10 September 2025 | Lot 1

77 Lancaster Road, Great Yarmouth, Norfolk NR30 2NN

Sold £153,000

  • Terraced House
  • 3 Bedrooms
  • Tenure: Freehold

Call the team on 01603 505 100 for more information

Auction Date

Wed 10/09/2025

Auction Time

10:00

Auction Venue

Livestream Auction

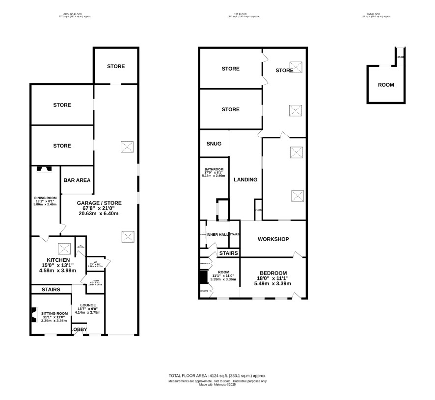
Unique and spacious three bedroom mid terrace house with garage providing off road parking

This three bedroom mid terrace house has been in the same ownership for nearly 50 years and is now to be sold with vacant possession. The property benefits from a garage, gas fired central heating, cctv, intruder alarm, is mostly double glazed and has solar panels and battery storage. This unique house is deceptively spacious incorporating a range of buildings to the rear. providing an extensive storage area and scope for further bedrooms or possible development opportunity, subject to the necessary consents. It is located around half a mile east of the town centre, close to the beach and a range of services and amenities. On instruction of executors.

Tenure

Freehold

Ground floor

Entrance lobby, lounge, sitting room, kitchen, utility, wc, dining room, bar area, three store rooms, wc

First floor

Landing, bathroom, room, two bedrooms, workshop, snug, three store rooms

Second floor

Bedroom, two attic rooms

Outside

Garage with electric garage door

Council Tax Band

A

Viewings

Viewings are being held by appointment only and are offered on the following days: Tuesday 19th August Friday 22nd August Tuesday 26th August Thursday 28th August Monday 1st September Friday 5th September Monday 8th September Please contact the Norwich Office to book your appointment

Energy Efficiency Rating (EPC)

Current Rating D

Services

Interested parties are requested to make their own enquiries to the relevant authorities as to the availability of services.

Local Authority

Great Yarmouth Borough Council

Solicitors

HKB Wiltshires (Great Yarmouth), Ref: Rachael Roll, Tel: 01493 855676

Offered in association with

Bycroft Residential

Important Notice to Prospective Buyers:

We draw your attention to the Special Conditions of Sale within the Legal Pack, referring to other charges in addition to the purchase price which may become payable. Such costs may include Search Fees, reimbursement of Sellers costs and Legal Fees, and Transfer Fees amongst others.

Additional Fees

Buyer's Premium - £960 inc VAT payable on exchange of contracts.

Administration Charge - £1200 inc VAT payable on exchange of contracts.

Disbursements - Please see the legal pack for any disbursements listed that may become payable by the purchaser on completion.