For Sale By Auction | 10:00, 10 September 2025 | Lot 2

52 Newnham Green, Gorleston, Great Yarmouth, Norfolk NR31 7JX

Sold £110,000

  • Terraced House
  • 3 Bedrooms
  • Tenure: Freehold

Call the team on 01603 505 100 for more information

Auction Date

Wed 10/09/2025

Auction Time

10:00

Auction Venue

Livestream Auction

Three bedroom mid terrace house with off road parking requiring modernisation

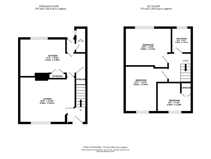
This modern three bedroom mid terrace house extends to around 747 sq/ft. It has been in the same ownership for many years and is now to be sold with vacant possession. It has double glazing, electric heating and an off road parking space to the front. It now requires updating to realise its full potential. It is located around a mile west of the town centre near a comprehensive range of services and amenities. Ideal for owner occupation or investment.

Tenure

Freehold

Ground floor

Entrance hall, lounge, kitchen, wc

First floor

Landing, three bedrooms, bathroom

Outside

Front garden with off road parking space, rear garden with outbuilding

Please Note

There are restrictions on the title to this property and please refer to the legal pack fur further information.

Council Tax Band

A

Viewings

Viewings are being arranged BY APPOINTMENT ONLY and the final one is on Monday 8th September To book your appointment time please call the Norwich office

Energy Efficiency Rating (EPC)

Current Rating E

Services

Interested parties are requested to make their own enquiries to the relevant authorities as to the availability of services.

Local Authority

Great Yarmouth Borough Council

Solicitors

nplaw, Ref: Gerry Casey, Tel: 01603 222925

Important Notice to Prospective Buyers:

We draw your attention to the Special Conditions of Sale within the Legal Pack, referring to other charges in addition to the purchase price which may become payable. Such costs may include Search Fees, reimbursement of Sellers costs and Legal Fees, and Transfer Fees amongst others.

Additional Fees

Buyer's Premium - £960 inc VAT payable on exchange of contracts.

Administration Charge - £1200 inc VAT payable on exchange of contracts.

Disbursements - Please see the legal pack for any disbursements listed that may become payable by the purchaser on completion.