For Sale By Auction | 10:00, 10 September 2025 | Lot 44 - STILL AVAILABLE

43 & 45 Church Street, Wells-Next-The-Sea, Norfolk NR23 1HZ

Sold After

  • Cottage
  • 5 Bedrooms
  • Tenure: Freehold

Call the team on 01603 505 100 for more information

Auction Date

Wed 10/09/2025

Auction Time

10:00

Auction Venue

Livestream Auction

Two semi-detached period cottages in prime North Norfolk location to be sold as one lot

This lot comprises of two semi-detached cottages to be sold as one. Quaker Cottage (no 43) is a three bedroom semi-detached house extending to around 140 sq/m with a garage. Fox Corner (no 45) is a one / two bedroom semi-detached cottage extending to around 57 sq/m. They have been in the same ownership since 1906, and having been rented for many years are now to be sold with vacant possession. The properties lie within a conservation area, however are not listed. Both properties require updating to realise their full potential but this the first time they have gone on the market for 119 years making them a rare opportunity. Ideal for owner occupation, holiday lets or second homes. On instruction of Charitable Trustees

Tenure

Freehold

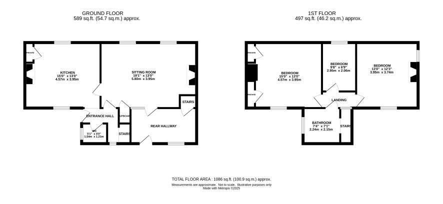
Quaker Cottage (43)

Lower Ground Floor: Cellar Ground Floor: Entrance hall, wc, sitting room, kitchen, rear entrance hall First Floor: Landing, three bedrooms, bathroom Outside: Rear garden in need of attention, garage at front providing off road parking

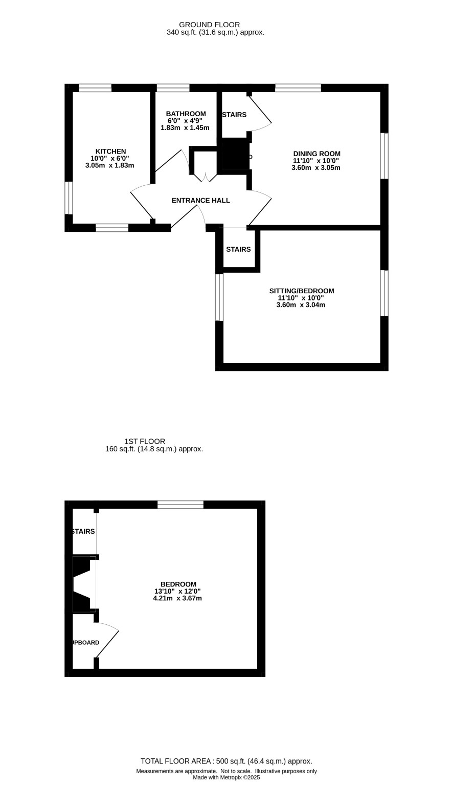
Fox Corner (45)

Ground Floor: Entrance hall, kitchen, bathroom, sitting room, dining room First Floor: Bedroom Outside: Small rear garden

Council Tax Bands

43 - D 45 - B

Viewings

Open viewings are arranged and the next are on Friday 5 September. To book the next available appointment please call the Norwich office.

Energy Efficiency Rating (EPC)

Current Rating E

Services

Interested parties are requested to make their own enquiries to the relevant authorities as to the availability of services.

Local Authority

North Norfolk District Council

Solicitors

Birketts (Norwich), Ref: Ellie Opie, Tel: 01603 364658

Important Notice to Prospective Buyers:

We draw your attention to the Special Conditions of Sale within the Legal Pack, referring to other charges in addition to the purchase price which may become payable. Such costs may include Search Fees, reimbursement of Sellers costs and Legal Fees, and Transfer Fees amongst others.

Additional Fees

Buyer's Premium - £960 inc VAT payable on exchange of contracts.

Administration Charge - £1200 inc VAT payable on exchange of contracts.

Disbursements - Please see the legal pack for any disbursements listed that may become payable by the purchaser on completion.