For Sale By Auction | 10:00, 10 December 2025 | Lot 27

Spa House, Church Road, Shelfanger, Diss, Norfolk IP22 2DG

*Guide | £500,000 - £550,000 (plus fees)

  • Detached House
  • 5 Bedrooms
  • Tenure: Freehold

Call the team on 01603 505 100 for more information

Auction Date

Wed 10/12/2025

Auction Time

10:00

Auction Venue

Livestream Auction

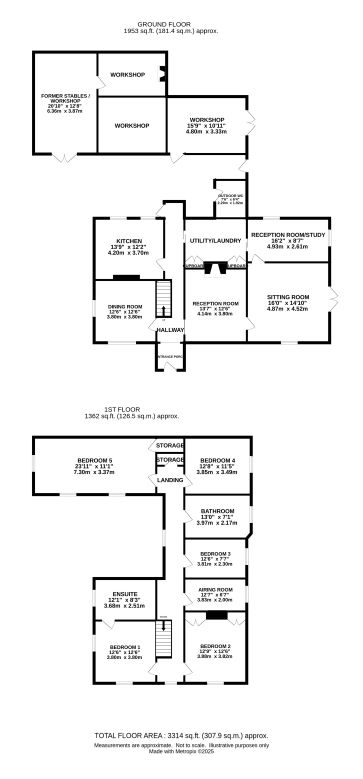
Substantial Georgian fronted five bedroom, three reception detached house set in delightful mature grounds of 1.8 acres (stms) in the rural Norfolk village of Shelfanger

A gated driveway leads to this impressive detached Georgian fronted period home. Offering spacious well-proportioned rooms throughout, the ground floor accommodation includes kitchen, utility room, dining room, study, and interconnected reception rooms with double doors that open onto the wonderful garden. The hallway leads upstairs which has a total of five bedrooms (one ensuite), with further family bathroom, airing room/storage. The landing extends over the courtyard and to the rear of the property and two of the bedrooms sit above the former stable block, which is now used as workshop and storage space. The property lends itself to creating an annexe that could be ideal for multi-generation living, guest accommodation or provide generous home office space. In the same family ownership for decades this is the first time to market in over 60 years. The property would now benefit from some updating and modernising to enhance and bring out its full potential.

Tenure

Freehold

Outside

In the wonderful mature gardens measuring approximately 1.8 acres there is a pond and a stream marks the boundary of the land. The property also has a swimming pool (not currently in use), further brick-built outbuilding, large storage unit and shed, large greenhouse and dedicated vegetable plot.

Note

The property has two septic tanks The mains water is currently on a shared supply with the neighbouring business.

Council Tax Band

G

Location

Situated in the rural village of Shelfanger, just a few minutes drive from the market town of Diss with further amenities and mainline train station with connections to London and Norwich. /// weekends.shrubbery.removing

Viewings

Viewings are being held by appointment only on: Thursday 20 Nov Please contact the Norwich Office to book your appointment time

Energy Efficiency Rating (EPC)

Current Rating E

Services

Interested parties are requested to make their own enquiries to the relevant authorities as to the availability of services.

Local Authority

South Norfolk Council

Solicitors

Jackamans (Diss), Ref: James Laband, Tel: 01379 643 555

Important Notice to Prospective Buyers:

We draw your attention to the Special Conditions of Sale within the Legal Pack, referring to other charges in addition to the purchase price which may become payable. Such costs may include Search Fees, reimbursement of Sellers costs and Legal Fees, and Transfer Fees amongst others.

Additional Fees

Buyer's Premium - £960 inc VAT payable on exchange of contracts.

Administration Charge - £1200 inc VAT payable on exchange of contracts.

Disbursements - Please see the legal pack for any disbursements listed that may become payable by the purchaser on completion.

View Larger Map

Disclaimer: The map preview provided above is for general guidance only and may not accurately reflect the exact location or surrounding buildings. Prospective buyers and interested parties are strongly advised to independently verify the precise location and surroundings before bidding.