For Sale By Auction | 10:00, 10 December 2025 | Lot 28

9 The Grove, Shotesham All Saints, Norwich, Norfolk NR15 1XJ

*Guide | £160,000 - £180,000 (plus fees)

  • Semi-Detached House
  • 3 Bedrooms
  • Tenure: Freehold

Call the team on 01603 505 100 for more information

Auction Date

Wed 10/12/2025

Auction Time

10:00

Auction Venue

Livestream Auction

Three bedroom semi-detached property with large gardens, scope for improvement

Situated in the sought-after South Norfolk village of Shotesham, this three bedroom semi-detached house offers an excellent opportunity for a first purchase, builder or investor. The property occupies a generous plot with front and rear gardens, and off-road parking. In need of modernisation and redecoration throughout, the accommodation comprises entrance hall, lounge, kitchen and bathroom on the ground floor, with three bedrooms on the first floor. The house benefits from double glazing, electric heating, and potential to extend (subject to planning permission). Set in a peaceful residential location surrounded by countryside, yet within easy reach of the A140 and Norwich, this property provides an ideal project with scope to add value.

Tenure

Freehold

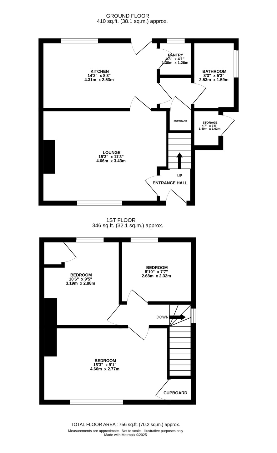
Ground Floor

Entrance hall, lounge, kitchen, bathroom

First Floor

Landing, three bedrooms

Outside

Good size front and rear garden, off road parking, shed

Council Tax Band

B

Viewings

Open viewings are arranged and the next are on Tuesday 25 November and Thursday, 27th November. To book an appointment please call the Norwich office.

Energy Efficiency Rating (EPC)

Current Rating E

Services

Interested parties are requested to make their own enquiries to the relevant authorities as to the availability of services.

Local Authority

South Norfolk Council

Solicitors

Howes Percival (Norwich), Ref: Sally Rackham, Tel: 01603 284250

Important Notice to Prospective Buyers:

We draw your attention to the Special Conditions of Sale within the Legal Pack, referring to other charges in addition to the purchase price which may become payable. Such costs may include Search Fees, reimbursement of Sellers costs and Legal Fees, and Transfer Fees amongst others.

Additional Fees

Buyer's Premium - £900 inc VAT payable on exchange of contracts.

Administration Charge - £1200 inc VAT payable on exchange of contracts.

Disbursements - Please see the legal pack for any disbursements listed that may become payable by the purchaser on completion.

View Larger Map

Disclaimer: The map preview provided above is for general guidance only and may not accurately reflect the exact location or surrounding buildings. Prospective buyers and interested parties are strongly advised to independently verify the precise location and surroundings before bidding.