For Sale By Auction | 10:00, 10 December 2025 | Lot 3

9A Harford Manor Close, Norwich, Norfolk NR2 2LW

*Guide | £300,000 - £350,000 (plus fees)

  • Chalet
  • 4 Bedrooms
  • Tenure: Freehold

Call the team on 01603 505 100 for more information

Auction Date

Wed 10/12/2025

Auction Time

10:00

Auction Venue

Livestream Auction

Four bedroom detached property in good decorative order in a tucked away location

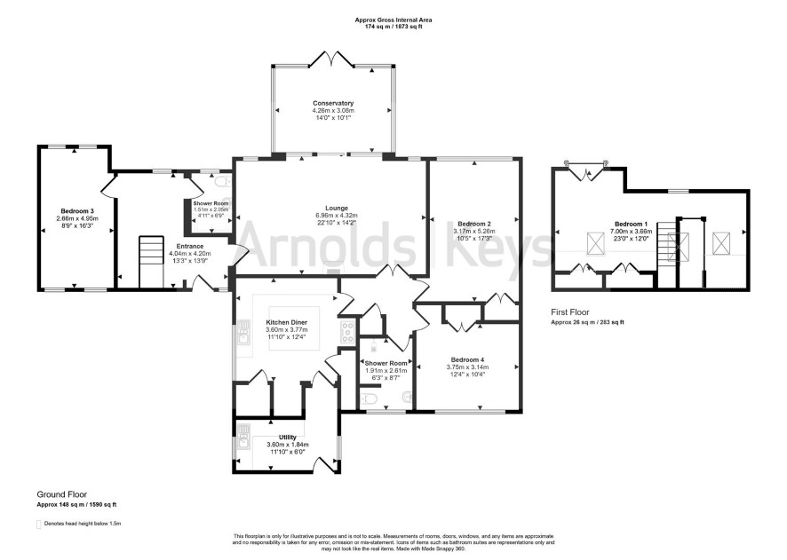
This spacious four bedroom modern detached property extends to around 174 sq/m. It was previously let at £1,400 pcm (£16,800 pa) and is now to be sold with vacant possession. Having been extended and refitted in recent years the property provides modern, spacious and versatile accommodation. It is tucked away at the end of a no through private road within a popular and highly convenient location in the Golden Triangle, with off road parking, a car port and good size gardens. On instruction of executors.

Tenure

Freehold

Ground floor

Entrance hall, lounge, conservatory, kitchen / diner, utility room, two shower rooms, three bedrooms

First floor

Bedroom with juliet balcony

Outside

Mainly low maintenance, paved gardens surrounding. Off road parking with a shingle driveway to the front and an attached carport.

Note

Mains drainage, gas, water and electricity connected. There is an annual payment of £75 for maintenance of shared areas.

Council Tax Band

F

Viewings

Viewings are by appointment only and the next are: Tuesday 2nd December Please contact the Norwich Office to book the next available appointment.

Energy Efficiency Rating (EPC)

Current Rating C

Services

Interested parties are requested to make their own enquiries to the relevant authorities as to the availability of services.

Local Authority

Norwich City Council

Solicitors

EG Law, Ref: Kate Fitzgerald, Tel: 01508 486561

Important Notice to Prospective Buyers:

We draw your attention to the Special Conditions of Sale within the Legal Pack, referring to other charges in addition to the purchase price which may become payable. Such costs may include Search Fees, reimbursement of Sellers costs and Legal Fees, and Transfer Fees amongst others.

Additional Fees

Buyer's Premium - £960 inc VAT payable on exchange of contracts.

Administration Charge - £1200 inc VAT payable on exchange of contracts.

Disbursements - Please see the legal pack for any disbursements listed that may become payable by the purchaser on completion.

View Larger Map

Disclaimer: The map preview provided above is for general guidance only and may not accurately reflect the exact location or surrounding buildings. Prospective buyers and interested parties are strongly advised to independently verify the precise location and surroundings before bidding.