For Sale By Auction | 10:00, 10 December 2025 | Lot 4

Erpingham House, 22 Tombland, Norwich, Norfolk NR3 1RF

*Guide | £275,000 (plus fees)

  • Commercial Property
  • Tenure: Freehold

Call the team on 01603 505 100 for more information

Auction Date

Wed 10/12/2025

Auction Time

10:00

Auction Venue

Livestream Auction

Vacant Grade II listed city centre building extending to around 3,677 sq/ft

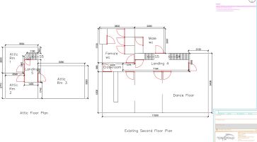
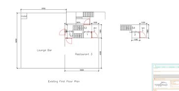
Known as Erpingham House, this prominent three storey mid terrace Grade II listed building is located within the city centre conservation area to the east side of Tombland with fine views of Norwich Cathedral to the rear. The building’s most recent use was as a restaurant (previously let at £31,500 pa) which falls within Use Class E (Commercial, Business and Service). This class allows for a range of uses including retail, office, and indoor recreation. There is the potential to convert the upper floors to residential subject to the necessary consents being obtained. According to the Valuation Office website, the restaurant and premises has a rateable value of £38,000 with effect from the 1st April 2023. With a basement and attic there is accommodation over five floors and the building has a gross internal area of 341.55 sq/m (3,677 sq/ft). First time to market since 1969 making this a rare opportunity. The existing building has three storeys plus rooms in the attic and was previously used as a restaurant across the ground, first and second floors.

Tenure

Freehold

Lower ground floor

Three rooms

Ground floor

Entrance hall, kitchen, two rooms, wc

First floor

Landing, two rooms, two separate toilets

Second floor

Landing, three rooms, two separate toilets

Third floor

Three attic rooms

Outside

Small side and rear yard area

Viewing

Open viewings are arranged and the next are on Monday 24th November. To book an appointment please call the Norwich office.

Note

A recent structural visual inspection report, measured survey report and desktop planning appraisal is included in the legal pack.

Energy Efficiency Rating (EPC)

Current Rating C

Services

Interested parties are requested to make their own enquiries to the relevant authorities as to the availability of services.

Local Authority

Norwich City Council

Solicitors

nplaw, Ref: Sarah Bell, Tel: 01603 222597

Important Notice to Prospective Buyers:

We draw your attention to the Special Conditions of Sale within the Legal Pack, referring to other charges in addition to the purchase price which may become payable. Such costs may include Search Fees, reimbursement of Sellers costs and Legal Fees, and Transfer Fees amongst others.

Additional Fees

Buyer's Premium - £600 inc VAT payable on exchange of contracts.

Administration Charge - £1200 inc VAT payable on exchange of contracts.

Disbursements - Please see the legal pack for any disbursements listed that may become payable by the purchaser on completion.

View Larger Map

Disclaimer: The map preview provided above is for general guidance only and may not accurately reflect the exact location or surrounding buildings. Prospective buyers and interested parties are strongly advised to independently verify the precise location and surroundings before bidding.