For Sale By Auction | 10:00, 11 February 2026 | Lot 47

Flat 3, 55 Oxford Road, Clacton-On-Sea, Essex CO15 3TD

*Guide | £60,000 (plus fees)

  • Maisonette
  • 2 Bedrooms
  • Tenure: Leasehold. 125 years from 1 January 2008

Call the team on 01473 558 888 for more information

Auction Date

Wed 11/02/2026

Auction Time

10:00

Auction Venue

Livestream Auction

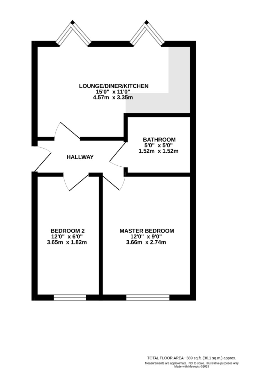
Two bedroom maisonette apartment requiring refurbishment throughout

Located in Clacton-on-Sea, this maisonette offers two good sized bedrooms, bathroom and an open plan lounge/kitchen area. The property benefits from off road parking to the rear, gas central heating and double glazed windows. Clacton-on-Sea is a seaside town on the Essex coast, known for its historic pier, and classic British seaside charm. It offers traditional attractions like arcades and promenades alongside scenic coastal walks and nearby nature reserves.

Tenure

Leasehold. 125 years from 1 January 2008

Leasehold Information

Term: 125 years from 1 January 2008 (107 years remaining) Annual ground rent/review period : Please refer to legal pack Annual service charge/review period : Please refer to legal pack

Council Tax Band

A

Energy Efficiency Rating (EPC)

Current Rating C

Services

Interested parties are requested to make their own enquiries to the relevant authorities as to the availability of services.

Local Authority

Tendring District Council

Solicitors

TLT - LBG, Ref: Tayler Jones, Tel: (0)330 165 4201

Important Notice to Prospective Buyers:

We draw your attention to the Special Conditions of Sale within the Legal Pack, referring to other charges in addition to the purchase price which may become payable. Such costs may include Search Fees, reimbursement of Sellers costs and Legal Fees, and Transfer Fees amongst others.

Additional Fees

Buyer's Premium - £1200 inc VAT payable on exchange of contracts.

Administration Charge - £1200 inc VAT payable on exchange of contracts.

Disbursements - Please see the legal pack for any disbursements listed that may become payable by the purchaser on completion.

View Larger Map

Disclaimer: The map preview provided above is for general guidance only and may not accurately reflect the exact location or surrounding buildings. Prospective buyers and interested parties are strongly advised to independently verify the precise location and surroundings before bidding.