For Sale By Auction | 10:00, 11 February 2026 | Lot 48

Baptist Church, 86 Hall Lane, Walton on the Naze, Essex CO14 8HN

*Guide | £150,000 - £170,000 (plus fees)

  • Place of Worship
  • Tenure: Freehold

Call the team on 01473 558 888 for more information

Auction Date

Wed 11/02/2026

Auction Time

10:00

Auction Venue

Livestream Auction

A semi-detached redundant church close to the sea front

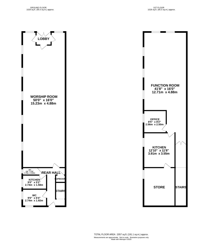
This two storey church is believed to have been constructed in the early 1900s and offers around 2,000 sq ft (185 sq m) of accommodation to include a 50' open plan worship room, a first floor meeting/function room, an office, two kitchens, two WCs and storage. To the rear is a concreted parking area with space for up to seven cars which is accessed off Beatrice Road. It is considered the property has excellent alternative use potential (subject to planning) and is a first class development opportunity.

Tenure

Freehold

Viewing

Open Viewings have been scheduled as follows: Fri 16th January - 11.30 to 12.00 Thurs 22nd January - 1.00 to 1.30 Tues 27th January - 10.30 to 11.00 BOOKING AN APPOINTMENT IS ESSENTIAL Please call 01473 558888 to confirm your attendance

Services

Interested parties are requested to make their own enquiries to the relevant authorities as to the availability of services.

Local Authority

Tendring District Council

Solicitors

Wellers Law Group, Ref: Isabella Pavitt, Tel: 020 3993 2546

Important Notice to Prospective Buyers:

We draw your attention to the Special Conditions of Sale within the Legal Pack, referring to other charges in addition to the purchase price which may become payable. Such costs may include Search Fees, reimbursement of Sellers costs and Legal Fees, and Transfer Fees amongst others.

Additional Fees

Buyer's Premium - £1500 inc VAT payable on exchange of contracts.

Administration Charge - £1200 inc VAT payable on exchange of contracts.

Disbursements - Please see the legal pack for any disbursements listed that may become payable by the purchaser on completion.

View Larger Map

Disclaimer: The map preview provided above is for general guidance only and may not accurately reflect the exact location or surrounding buildings. Prospective buyers and interested parties are strongly advised to independently verify the precise location and surroundings before bidding.