For Sale By Auction | 10:00, 11 February 2026 | Lot 2

3 Temple Road, Norwich, Norfolk NR3 1ED

*Guide | £140,000 - £160,000 (plus fees)

  • Block of Apartments
  • 2 Bedrooms
  • Tenure: Freehold

Call the team on 01603 505 100 for more information

Auction Date

Wed 11/02/2026

Auction Time

10:00

Auction Venue

Livestream Auction

High yielding freehold residential investment comprising two flats let producing £15,900 pa

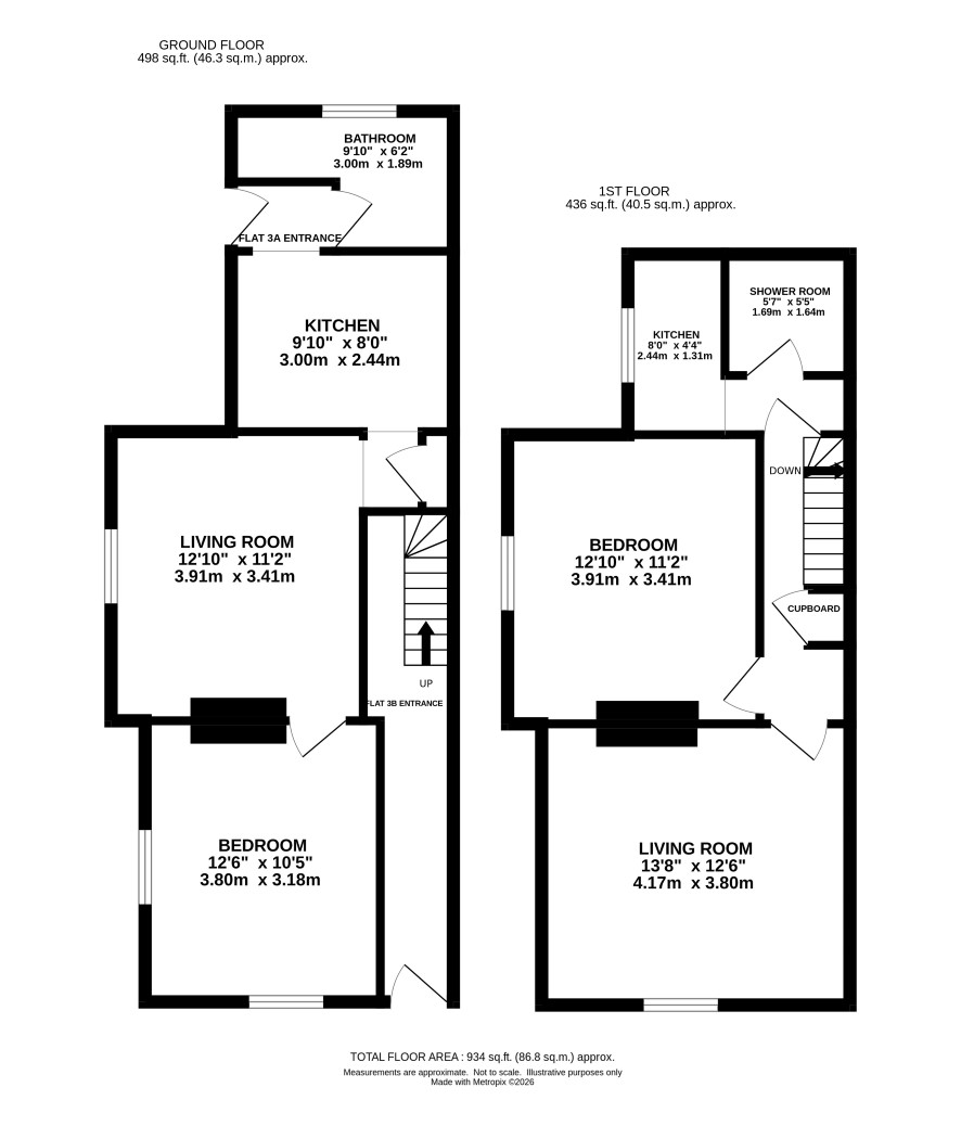
This end terraced property extends to around 98 sq/m. It is arranged as two self contained one bedroom flats let producing £15,900 pa. 3a is a one bedroom ground floor flat accessed via the side rear let on a twelve month assured shorthold tenancy dated August 2025 at £725 pcm (£8,700 pa). 3b is a one bedroom first floor flat accessed from the front let on an assured shorthold tenancy at £600 pcm (£7,200 pa). This high yield makes it an attractive buy to let investment opportunity. First time to market in over 25 years. On instruction of executors.

Tenure

Freehold

3a (47 sq/m)

Ground floor: bedroom, living room, kitchen, bathroom

3b (51 sq/m)

First floor: bedroom, living room, kitchen, bathroom

Outside

Small front shingle garden and side and rear garden

Note

The photos of the flat were taken before the tenant moved in.

Council Tax Band

A

Viewing

Open viewings are arranged in conjunction with the two tenants and the next are on: Tuesday 27 January Please call the Norwich office to book the next available appointment.

Energy Efficiency Rating (EPC)

Current Rating 3a: E 3b: C

Services

Interested parties are requested to make their own enquiries to the relevant authorities as to the availability of services.

Local Authority

Norwich City Council

Solicitors

Rogers and Norton (Norwich), Ref: Steven Clarke, Tel: 01603 666001

Important Notice to Prospective Buyers:

We draw your attention to the Special Conditions of Sale within the Legal Pack, referring to other charges in addition to the purchase price which may become payable. Such costs may include Search Fees, reimbursement of Sellers costs and Legal Fees, and Transfer Fees amongst others.

Additional Fees

Administration Charge - £1200 inc VAT payable on exchange of contracts.

Disbursements - Please see the legal pack for any disbursements listed that may become payable by the purchaser on completion.

View Larger Map

Disclaimer: The map preview provided above is for general guidance only and may not accurately reflect the exact location or surrounding buildings. Prospective buyers and interested parties are strongly advised to independently verify the precise location and surroundings before bidding.