For Sale By Auction | 10:00, 11 February 2026 | Lot 3

22 Priory View, Paper Mill Yard, Norwich, Norfolk NR1 2GA

*Guide | £125,000 (plus fees)

  • Flat
  • 2 Bedrooms
  • Tenure: Leasehold. 125 years from 1 January 2007

Call the team on 01603 505 100 for more information

Auction Date

Wed 11/02/2026

Auction Time

10:00

Auction Venue

Livestream Auction

An impressive third floor apartment in a highly sought after riverside location

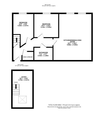
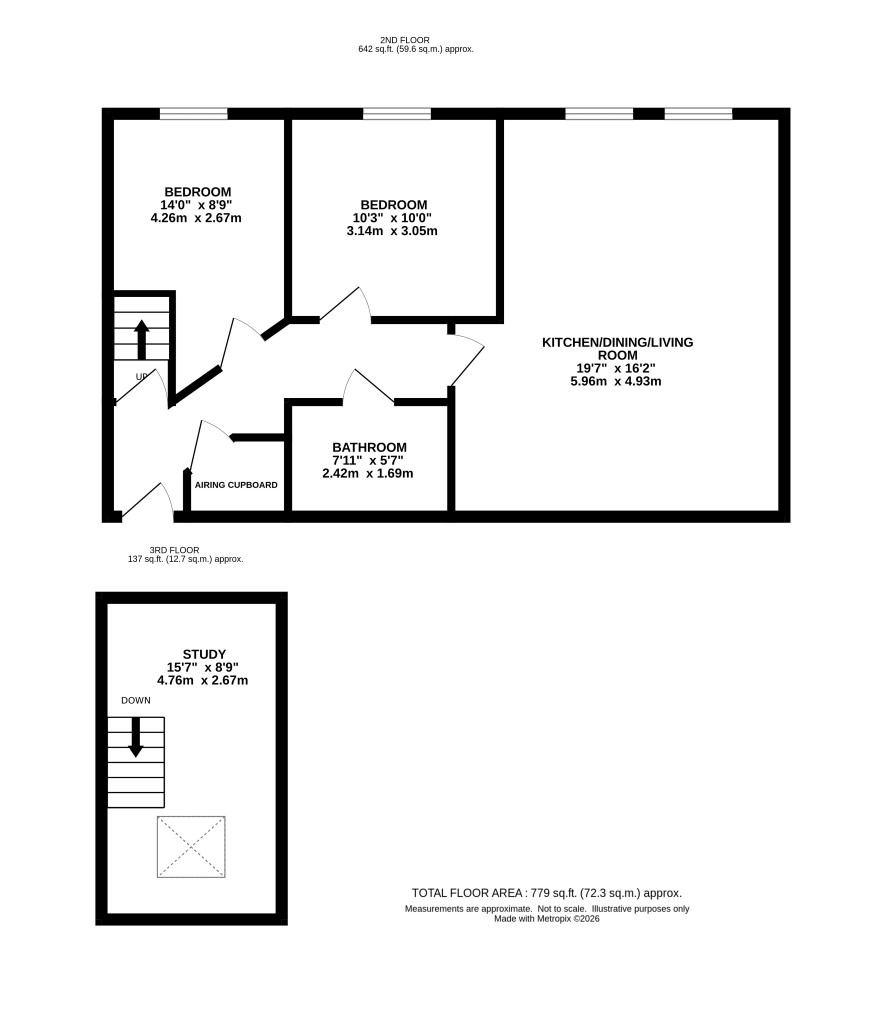
This two bedroom, top floor apartment is excellently situated being within the popular riverside development area. The property includes a large open plan living/dining room/kitchen, two bedrooms, a main bathroom on the principal level and a study on the upper floor. The property has allocated parking and is ideally located only a short walk from both Norwich city centre, the Riverside Leisure complex and the main train station. Excellent for investment or owner occupation.

Tenure

Leasehold. 125 years from 1 January 2007

Accommodation

Hall, open plan lounge/kitchen, two bedrooms, two bathrooms Upper floor study/occasional third bedroom

Outside

Communal gardens allocated parking space.

Lease details

Term: 125 years from 1 January 2007 (106 years remaining) Annual ground rent: £150 Annual service charge: £3,111.06

Council Tax Band

B

Viewings

Open day viewings are available and we are next at the property on Thursday, 15th January 2026. Please call the Norwich office to book a viewing time.

Energy Efficiency Rating (EPC)

Current Rating C

Services

Interested parties are requested to make their own enquiries to the relevant authorities as to the availability of services.

Local Authority

Norwich City Council

Solicitors

Moore Barlow, Gateway House, Ref: Moore Barlow, Tel: 44 (0)23 8071 8000

Important Notice to Prospective Buyers:

We draw your attention to the Special Conditions of Sale within the Legal Pack, referring to other charges in addition to the purchase price which may become payable. Such costs may include Search Fees, reimbursement of Sellers costs and Legal Fees, and Transfer Fees amongst others.

Additional Fees

Buyer's Premium - £900 inc VAT payable on exchange of contracts.

Administration Charge - £1200 inc VAT payable on exchange of contracts.

Disbursements - Please see the legal pack for any disbursements listed that may become payable by the purchaser on completion.

View Larger Map

Disclaimer: The map preview provided above is for general guidance only and may not accurately reflect the exact location or surrounding buildings. Prospective buyers and interested parties are strongly advised to independently verify the precise location and surroundings before bidding.