For Sale By Auction | 12:00, 22 October 2025 | Lot 16

16 Rydal Avenue, Garforth, Leeds, West Yorkshire LS25 1JG

*Guide | £195,000 (plus fees)

  • Semi-Detached House
  • 3 Bedrooms

Call the team on 0113 393 3482 for more information

Auction Date

Wed 22/10/2025

Auction Time

12:00

Auction Venue

Live Stream

This three bedroom semi detached property with off street parking, garage, workshop and garden is offered for sale via traditional auction. The property is in good internal condition and would make a great family home or addition to a rental portfolio. The property is situated on the ever popular Grange Estate and within walking distance to Garforth Main Street. Please note that the property is of non-standard construction, however we have been provided with a certificate to reflect that the house is of a non-defective construction. Buyers are advised to do their own research in this regard.

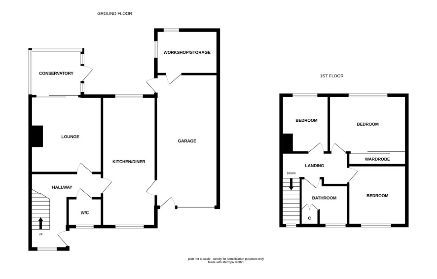
Ground Floor

Lounge, kitchen diner, conservatory, WC, garage and workshop

First Floor

Three bedrooms and a bathroom

Externally

Garage and rear garden

Additional Information

Council Tax

Leeds City Council - Band C

EPC Rating

D

Tenure

Freehold

Charges and Payments

In addition to the deposit Administration Charge: 1.2% inc VAT of the purchase price subject to a minimum of £1,500 inc VAT. Searches £300 inc VAT.

Important Notice to Prospective Buyers:

We draw your attention to the Special Conditions of Sale within the Legal Pack, referring to other charges in addition to the purchase price which may become payable. Such costs may include Search Fees, reimbursement of Sellers costs and Legal Fees, and Transfer Fees amongst others.

Additional Fees

Administration Charge - See above

Disbursements - Please see the legal pack for any disbursements listed that may become payable by the purchaser on completion.