For Sale By Auction | 12:00, 22 October 2025 | Lot 18

Land opposite 130/130a, Town Street , Stanningley , Leeds, West Yorkshire LS28 6ER

*Guide | £70,000 (plus fees)

  • Plot

Call the team on 0113 393 3482 for more information

Auction Date

Wed 22/10/2025

Auction Time

12:00

Auction Venue

Live Stream

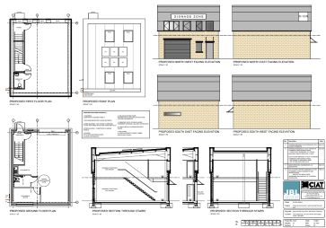
Sure to appeal to any developers looking for a modest project, this parcel of land with gated access is now offered with recently approved planning permission for a detached commercial/light industrial business unit. Any interested parties looking for further information are advised to visit the Leeds planning portal searching reference 25/02525/FU. The land is located in the heart of Stanningley just six miles to the west of Leeds city centre.

Additional Information

Council Tax

Leeds City Council

Tenure

Freehold

Charges and Payments

In addition to the deposit Administration Charge: 1.2% inc VAT of the purchase price subject to a minimum of £1,500 inc VAT.

Important Notice to Prospective Buyers:

We draw your attention to the Special Conditions of Sale within the Legal Pack, referring to other charges in addition to the purchase price which may become payable. Such costs may include Search Fees, reimbursement of Sellers costs and Legal Fees, and Transfer Fees amongst others.

Additional Fees

Administration Charge - See above

Disbursements - Please see the legal pack for any disbursements listed that may become payable by the purchaser on completion.