For Sale By Auction | 12:00, 22 October 2025 | Lot 46

Flat 1-3, 6 Dorset Terrace, Harehills, Leeds, West Yorkshire LS8 3QR

*Guide | £175,000 (plus fees)

  • Terraced House
  • 3 Bedrooms

Call the team on 0113 393 3482 for more information

Auction Date

Wed 22/10/2025

Auction Time

12:00

Auction Venue

Live Stream

This mid-terrace property in the heart of Harehills is split into three flats and is sold with vacant possession. We believe this could achieve in the region of £2,250pcm, so would make a great addition to a landlord's portfolio. The property has recently undergone upgrades including new gas central heating, new boilers, wall and roof insulation and cosmetic improvements. The house is located in Harehills, an area of Leeds located 1.5 miles north of Leeds city centre. There are regular bus routes to the city making it ideal for commuters or to access all the amenities, however Harehills offers ample shops, schools and restaurants.

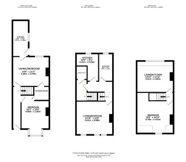
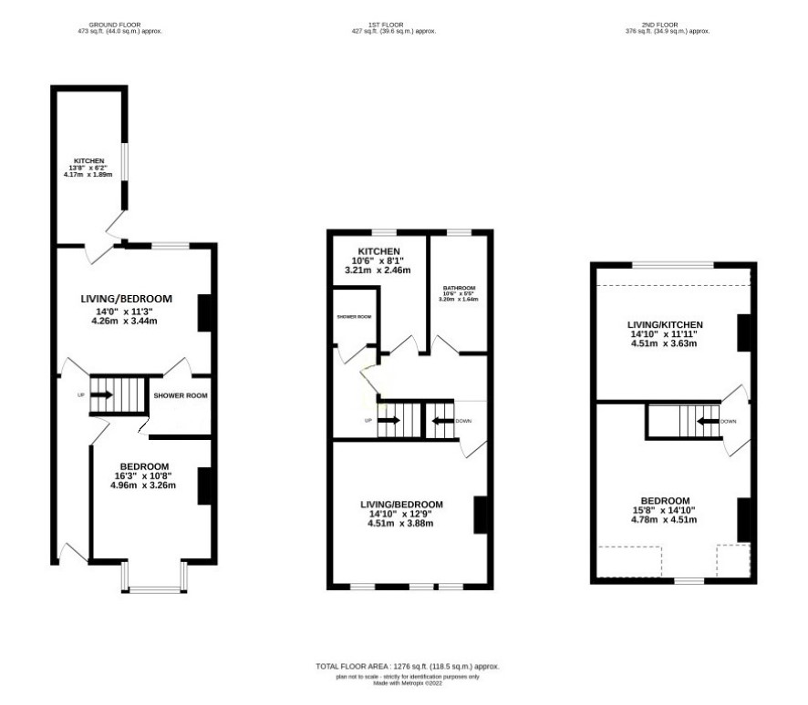
ACCOMMODATION

Ground Floor

Kitchen, living room/bedroom and shower room.

First Floor

Bedroom, bathroom and kitchen.

Second Floor

Bedroom and kitchen/living room.

ADDITIONAL INFORMATION

Council Tax

Band A.

EPC

Flat 1 - Rating D Flat 2 - Rating C Flat 3 - Rating C

Tenure

Freehold.

Charges & Payments

In addition to the deposit Administration Charge: 1.2% inc VAT of the purchase price subject to a minimum of £1,500 inc VAT. Searches £300 inc VAT

Important Notice to Prospective Buyers:

We draw your attention to the Special Conditions of Sale within the Legal Pack, referring to other charges in addition to the purchase price which may become payable. Such costs may include Search Fees, reimbursement of Sellers costs and Legal Fees, and Transfer Fees amongst others.

Additional Fees

Administration Charge - See above

Disbursements - Please see the legal pack for any disbursements listed that may become payable by the purchaser on completion.