For Sale By Auction | 12:00, 22 October 2025 | Lot 43

29 Melrose Street, Bradford, West Yorkshire BD7 3EW

*Guide | £45,000 (plus fees)

  • Terraced House
  • 2 Bedrooms

Call the team on 0113 393 3482 for more information

Auction Date

Wed 22/10/2025

Auction Time

12:00

Auction Venue

Live Stream

This two bedroom back to back terrace property is being sold via traditional auction. The property is heavily cluttered and does require full renovation throughout, however would make a great project or addition to a rental portfolio. Situated within this most convenient of localities within the Great Horton area of Bradford. Ideal for many of the local amenities and commute to the city centre. Please note: the property will be sold as seen. Additionally, due to the poor internal condition, it was difficult for Auction House to inspect the full property and there will be no viewings.

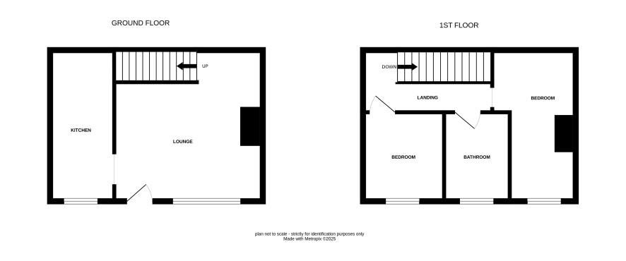
Ground Floor

Lounge and kitchen.

First Floor

Two bedrooms and bathroom.

Externally

Yard.

ADDITIONAL INFORMATION

Council Tax

Band A.

EPC

Except due to condition.

Tenure

Freehold.

Charges & Payments

In addition to the deposit Administration Charge: 1.2% inc VAT of the purchase price subject to a minimum of £1,500 inc VAT. Searches £300 inc VAT.

Important Notice to Prospective Buyers:

We draw your attention to the Special Conditions of Sale within the Legal Pack, referring to other charges in addition to the purchase price which may become payable. Such costs may include Search Fees, reimbursement of Sellers costs and Legal Fees, and Transfer Fees amongst others.

Additional Fees

Administration Charge - See above

Disbursements - Please see the legal pack for any disbursements listed that may become payable by the purchaser on completion.