For Sale By Auction | 12:00, 10 December 2025 | Lot 22

Tong Road Delivery Office, Upper Wortley Road, Leeds, West Yorkshire LS12 4JG

*Guide | £450,000 (plus fees)

  • Commercial Property

Call the team on 0113 393 3482 for more information

Auction Date

Wed 10/12/2025

Auction Time

12:00

Auction Venue

Live Stream

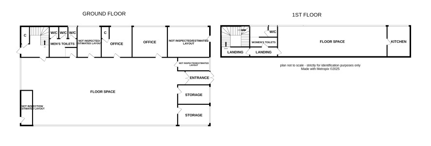
For Sale by Livestream Auction unless Sold Prior - Royal Mail Delivery Office Situated in LS12, 2.3 miles to the West of Leeds city centre, Auction House are pleased to bring to market this (soon to be former) Royal Mail delivery office. Set on approximately 0.58 of an acre the property comprises a two storey building with, according to the VOA website, 425 sq m (4,574 sq ft) of ground floor warehouse and office space with a further 104 sq m (1,119 sq ft) of first floor offices. Outside is a covered loading bay and yard providing parking for multiple vehicles. This unique property lends itself to a multitude of uses, for example workshop or warehousing, community use, residential development or retail (subject to necessary Planning Approval). It is offered for sale by Public Auction on the 10th December, however pre-auction offers are welcomed. Interested parties should be aware that Royal Mail are taking a 9 month leaseback at a peppercorn rent with a rolling break at month 4, to give them some extra time to vacate. Please note: a completion date of the 19th December 2025 applies.

Two Storey Building

Ground floor warehouse & office space with further offices to the first floor.

Externally

Covered loading bay and parking for multiple vehicles

Additional Information

Tenure

Freehold

EPC Rating

To follow

Charges and Payments

In addition to the deposit Administration Charge: 1.2% inc VAT of the purchase price subject to a minimum of £1,500 inc VAT. Buyer’s Premium: 2.4% inc VAT.

Important Notice to Prospective Buyers:

We draw your attention to the Special Conditions of Sale within the Legal Pack, referring to other charges in addition to the purchase price which may become payable. Such costs may include Search Fees, reimbursement of Sellers costs and Legal Fees, and Transfer Fees amongst others.

Additional Fees

Administration Charge - See above

Disbursements - Please see the legal pack for any disbursements listed that may become payable by the purchaser on completion.

View Larger Map

Disclaimer: The map preview provided above is for general guidance only and may not accurately reflect the exact location or surrounding buildings. Prospective buyers and interested parties are strongly advised to independently verify the precise location and surroundings before bidding.